Typologies
Habiter est le lien fondateur entre vivre et loger. On loge quelque part, précisément, mais on habite simultanément de multiples lieux à différentes échelles. Les projets s’adressent tout autant au paysage qu’à l’échelle domestique, au quotidien des habitant en proposant des lieux à disposition, libres d’appropriations.

Evenepoel
Les appartements s’organisent en trois couches du centre vers la périphérie: les circulations communes, les services, et ensuite les pièces de vie au sens large (salon, cuisines, loggia, chambres,...) qui bénéficient ainsi dee vues sur le paysage lointain.

Luttre
Le réaménagement des plateaux de cette ancienne manufacture induit une typologie originale : profonde et jouissant d’une hauteur sous plafond importante, tendue entre une loggia à rue et une coursive en intérieur d’îlot.

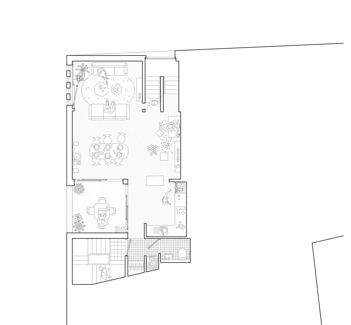
Gilisquet
Le projet est organisé en trois couches, les chambres à rue, puis les salons qui s'ouvrent largement sur la nouvelle épaisseur constituée de grandes terrasses ensoleillées et de cuisines, et au loin, un paysage verdoyant.

Casernes
Les appartements s'insèrent entre un nouvel espace public et un jardin, et présentent de multiples typologies qui bénéficient de leur position urbaine particulière : en duplex surplombant un cheminement, au bord d’une double façade donnant sur une place, affublé d’un grand balcon surplombant un jardin …

Dupond & Dupond
Deux immeubles de coin s’abstraient d’une fréquentation urbaine peu enviable par l’intermédiaire d’un grand creux autour duquel s’articulent les logements et la circulation verticale.

Vervloet
Trois immeubles accueillent des appartements constitués d’une série de pièces en enfilade. L’une d’entre elles est un jardin d’hiver qui rythme la vie des habitants au gré des saisons.

Léger
Les appartements traversants jouissent de très grandes terrasses qui permettent d’habiter la perméabilité transversale des édifices.

Brichaut
L’immeuble se dresse contre un mur mitoyen élevé sur lequel s’appuie une bande de services. Les lieux extérieurs en creux qualifient les différents appartements en fonction de leur hauteur dans la ville.