Orgemont Logements. 2023 -
- Objet
Construction d’un ensemble de 89 logements, de commerces et de services
- Lieu
rue de Marseille, 36800 Epinay-sur-Seine
- Maître de l'ouvrage
Icade
- Surfaces
8.000 m2
- Coût
12.340.000,00 €
- statut
adjudication
Cet édifice de logements sociaux constitue la tête de proue d’une vaste opération de reconfiguration urbaine, à Orgemont. Il s’implante entre une avenue et un nouveau parc de plusieurs kilomètres de long, qui a vocation de relier le quartier à la Seine.
Orgemont
Richtext block
L’édifice se compose d’un socle, surplombé par une barre et un plot. Le socle se déforme pour créer des espaces publics : une place qui marque l’entrée du quartier et un jardin le long du parc. L’ensemble génère une fenêtre urbaine depuis la rue de Marseille, qui laisse pénétrer les rayons de soleil du soir, dans l’espace vert.
Richtext block
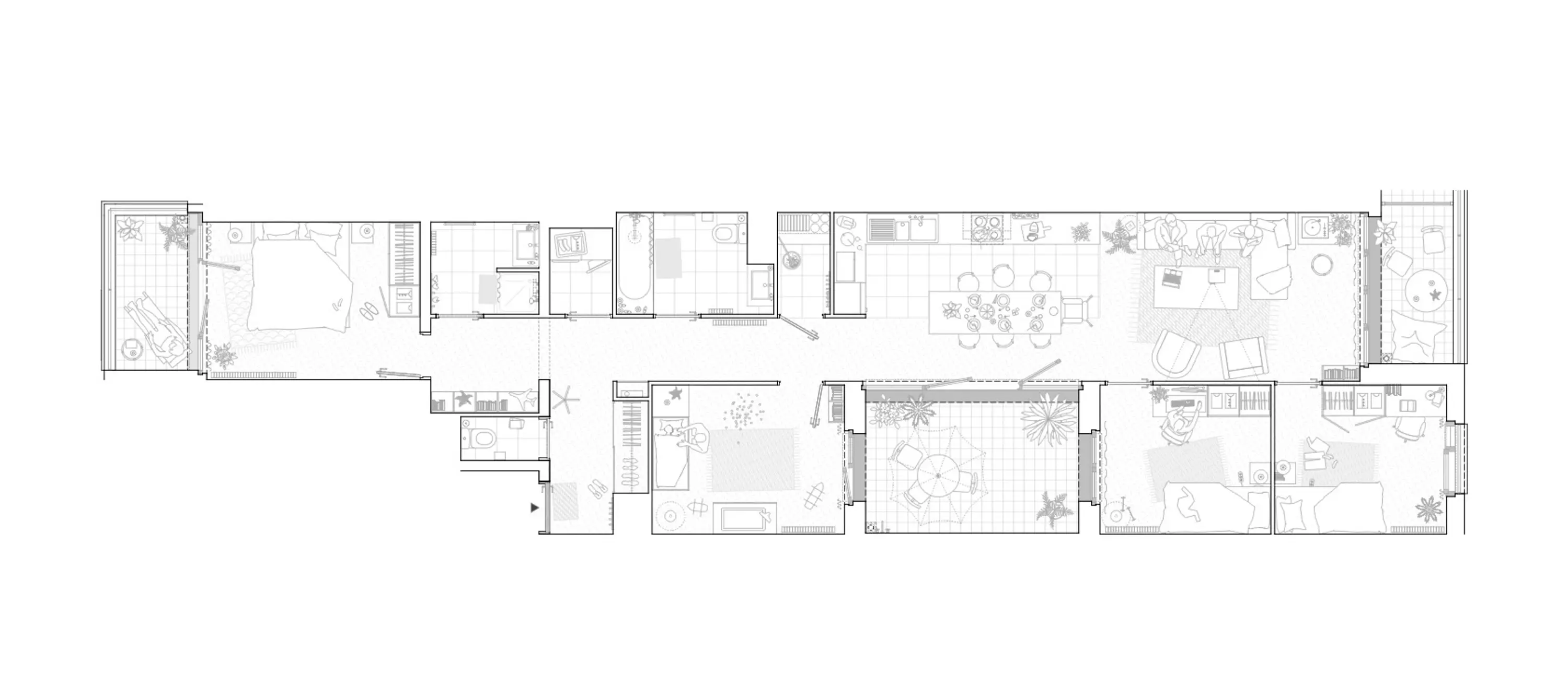
Le rez-de-chaussée perméable renferme des magasins, des services, un accueil pour de jeunes enfants et des locaux collectifs pour les habitants.De grands passages traversants, entre ville et parc, donnent accès aux 89 logements situés aux étages. La grande majorité des appartements sont traversants ou bi-orientés, et jouissent d’une terrasse d’angle.
Richtext block
Au premier étage, une série de logements compris dans le socle présentent une profondeur inhabituelle (de 20 à 25m). Tendus entre deux terrasses, ils s’articulent autour d’un patio.
Thématiques
Autres projets Logements
Ivry Gambetta
2022-Uccle repos
2022-2024Evenepoel
2020 -Villers
2020-2022Léger
2020Coghen
2020-Cuesmes
2020-Fives Cail
2019 -Luttre
2018-2026Gilisquet
2016-2021Vervloet
2016-Casernes
2009-2014Brichaut
2012Dupond & Dupond
2008-2012Cub house
2005-2008Jag's house
2005
