Toison d'or Bureaux. 2022-

- objet
Rénovation d'un ensemble de bureaux
- association
agwa
- bureau d'étude : stabilité - techniques spéciales - PEB
JZH & partners
- lieu
Bruxelles
- surface
13.500m2
Le projet vise la rénovation de deux immeubles de bureaux et de leur socle commun occupant une parcelle traversante entre l’avenue de la Toison d’Or et la rue Jourdan.
Le marché a pour particularité de présenter une enveloppe budgétaire fermée et de promouvoir un processus participatif. Le présent projet s’entend donc avant tout comme un processus. Il vise à fixer les bases de figures spatiales comme cadre dans lequel les désirs des différents utilisateurs pourront s’incarner.
toison d'or


Richtext block
Le projet adopte une posture radicale qui consiste à reconfigurer ce qui est là. Ainsi, les figures spatiales s’obtiennent en procédant par soustraction plutôt que par addition.
toison d'or


Richtext block
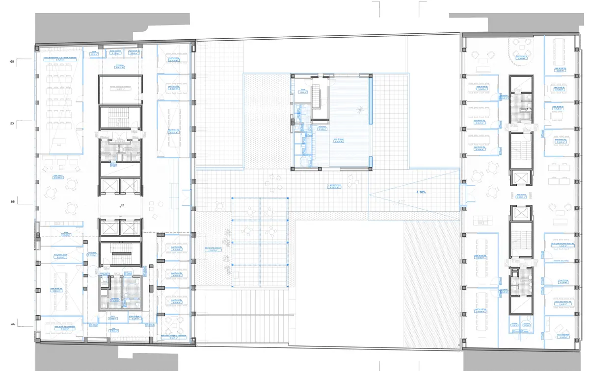
Pour les étages de bureaux, il s’agit de conserver les structures portantes actuelles et de valoriser le caractère de « grands plateaux » en retirant ou déplaçant certains cloisonnements afin :
- d’augmenter la perméabilité au travers des services en libérant les abouts des plateaux ;
- de créer des lieux ouverts sur les espaces de circulation permettant de désenclaver et d’éclairer ceux-ci.
Pour le socle, il s’agit de créer une nouvelle figure spatiale en s’appuyer sur la trame structurale existante et en supprimant certaines dalles afin :
- de créer un lieu majeur de connexion entre les deux édifices et, plus loin les deux rues : une galerie sur double hauteur relie directement les deux halls d’entrée. Sa toiture, aménagée en terrasse, crée une traversée supplémentaire, à l’air libre ;
- d’adjoindre les programmes communs, aux bords et aux abouts de cette galerie. Ces lieux extérieurs et intérieurs ont une identité spatiale forte : jardin, patios, cafétéria, auditoire, HUB, salle d’exposition, etc… Ils sont traités comme des « pièces architecturales » trouvant place dans la figure générale proposée.
La soustraction se couple à une stratégie de réemploi afin de minimiser, encore, l’ajout de nouvelles constructions. La circularité promue pour ses vertus écologiques devient ainsi le support d’une nouvelle esthétique.
plans toison d'or


toison d'or



Thématiques
Autres projets Bureaux
Hôtel de Ville de Hannut
2022-Toit & moi
2017-2021Clinique du Sport de Namur
2018-2024Ilot 11A
2017-2021Ateliers Van Volxem
2007laboratoires materianova
1997-2000