Galileo Éducation. 2018-2025

- objet
Extension et rénovation de la Haute École Galilée
- lieu
Rue Royale 326-336, 1030 Schaerbeek
- Maîtrise d'ouvrage
EPHEC (ex-Haute École Galilée)
- Surface
16.000 m² (transformé) + 3.500 m² (neuf)
- Coût
10.119.000 €
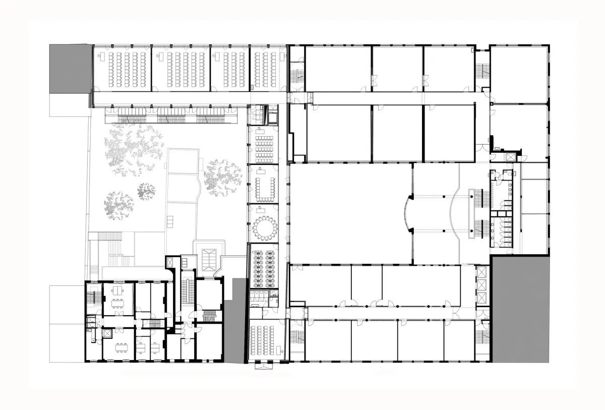
Le projet concerne la restructuration et l'extension du campus de la haute école Galilée, occupant une partie d'ilot typique bruxellois, sur la rue Royale, rue de la poste ainsi que la rue Dupont.
Le projet se construit comme une articulation aux différents paysages en présence. Le site jouit d’une topographie exceptionnelle : c’est un promontoire entre la vallée de la Senne et celle du Maelbeek. Le projet propose donc de créer un belvédère sur le toit de l’aile de l’extension située rue de la Poste.
Galileo


Richtext block
L’extension complète l’édifice institutionnel existant en confirmant son caractère sur cour et referme la dent creuse de la rue de la Poste en créant un grand jardin. Le projet clarifie ainsi l’îlot existant.
Galileo


Galileo


Richtext block
Les programmes communs se placent autour du jardin, alors que le niveau surélevé de la cour marque le début du monde des classes. Les nouveaux couloirs, nouvelles distributions, permettent de boucler les circulations existantes. Ils sont tantôt ouverts sur la cour, tantôt sur le jardin. Les circulations verticales existantes s’ouvrent sur l’espace public ou la cour. Des escaliers extérieurs lient chaque étage de l’extension au jardin et au belvédère. Le projet propose ainsi de fréquenter au quotidien des vallées, des rues, une cour et un jardin. Ces paysages deviennent de-facto des références spatiales qui contextualisent l’école du plus proche, au plus lointain.

Galileo



Thématiques
Actualités associées
Autres projets Éducation
Lycée Florian Moulin Pergaud
2023-2024Ecole Communale du Boutte
2021-Ecole Liotard
2020La Louvière - MODUL'R
2014 -Ecole communale de Thieusies
2014